




100% ilmainen ja ilman sitoumuksia
100% ilmainen ja ilman sitoumuksia
Kaisaniemenkatu 6, Helsinki
Vuokrattavana toimistotilaa Helsingin Kaisaniemessä.
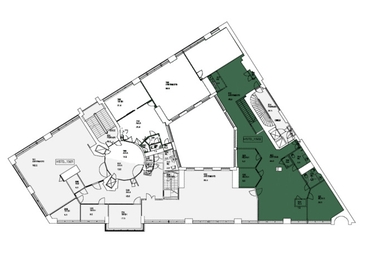
Tämä 673m2 toimistotila sijaitsee kiinteistön 6. kerroksessa. Tila koostuu avotilasta ja se voidaan jakaa 317m2 ja 356m2 kokoisiin osiin.
Kaisaniemenkatu 6 sijaitsee helposti saavutettavissa olevalla paikalla Kaisaniemenkadun ja Vuorimiehenkadun kulmassa. Rakennus on valmistunut vuona 1930 ja sen on suunnittelut Oiva Kallio. Kaikki keskustan ja Kaisaniemen alueen palvelut lähellä.
Kysy lisää numerosta 044 723 4700 tai info@bref.fi. Palvelumme on tilanhakijoille ilmainen.
Basic
Tämän toimiston käyttöalue on 673.0 - 673.0 neliömetriä, joten se on tilavampi kuin suurin osa vaihtoehdoista Helsinki:ssä. Tätä toimistotilaa pidetään suurena, sillä siihen mahtuu jopa 27 työntekijää. Tämän vuokrakohteen kokonaispinta-ala on 673.0 m², mikä on suurempi kuin kaupungin keskiarvo. Saat lisätietoja tästä toimistosta joka sijaitsee osoitteessa Kaisaniemenkatu 6, 00100 Helsinki suoraan vuokranantajalta täyttämällä lomakkeen verkkosivuillamme. Täytä lomake ja kysy toimistoa koskevat kysymykset suoraan kiinteistön omistajalta.
Puisto sijaitsee lähellä toimistoa. Se on täydellinen paikka keskustella ideoista ja projekteista. Tori sijaitsee lähellä toimistoa ja tuo elinvoimaa yrityksesi elämään. Joki virtaa 361 m etäisyydellä rakennuksesta, mikä lisää paikkakunnan yleistä vetovoimaa. Järvi sijaitsee 225 m päässä toimistosta, ja se on loputon energian ja motivaation lähde. Koska teatteri sijaitsee lähellä, tämä on yksi kaupungin edustavimmista osista.

Etkö ole vielä löytänyt sopivaa tilaa?
Luo hakuvahti ja saat tietoja uusista vapaista vuokrakohteista.
Näyttää siltä, että suosikit-listasi Kohteeton täynnä. Poista vanhoja kohteita lisätäksesi uusia.
Näyttää siltä, että suosikit-listasi Kohteeton täynnä. Poista vanhoja kohteita lisätäksesi uusia.
Näyttää siltä, että suosikit-listasi Kohteeton täynnä. Poista vanhoja kohteita lisätäksesi uusia.
Näyttää siltä, että suosikit-listasi Kohteeton täynnä. Poista vanhoja kohteita lisätäksesi uusia.
Näyttää siltä, että suosikit-listasi Kohteeton täynnä. Poista vanhoja kohteita lisätäksesi uusia.
Näyttää siltä, että suosikit-listasi Kohteeton täynnä. Poista vanhoja kohteita lisätäksesi uusia.
Näyttää siltä, että suosikit-listasi Kohteeton täynnä. Poista vanhoja kohteita lisätäksesi uusia.
Näyttää siltä, että suosikit-listasi Kohteeton täynnä. Poista vanhoja kohteita lisätäksesi uusia.
Näyttää siltä, että suosikit-listasi Kohteeton täynnä. Poista vanhoja kohteita lisätäksesi uusia.
Näyttää siltä, että suosikit-listasi Kohteeton täynnä. Poista vanhoja kohteita lisätäksesi uusia.
Näyttää siltä, että suosikit-listasi Kohteeton täynnä. Poista vanhoja kohteita lisätäksesi uusia.
Näyttää siltä, että suosikit-listasi Kohteeton täynnä. Poista vanhoja kohteita lisätäksesi uusia.
Näyttää siltä, että suosikit-listasi Kohteeton täynnä. Poista vanhoja kohteita lisätäksesi uusia.
Näyttää siltä, että suosikit-listasi Kohteeton täynnä. Poista vanhoja kohteita lisätäksesi uusia.