




100% ilmainen ja ilman sitoumuksia
100% ilmainen ja ilman sitoumuksia
Itämerenkatu 3, Helsinki
Modernia ja muuntojoustavaa toimistotilaa Ruoholahdessa.
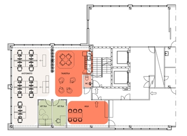
Kiinteistön 2. kerroksessa on vapaana upea 234m² Aina Valmis -tila. Toimisto on täysin remontoitu laadukkaita materiaaleja käyttäen. Toimistossa on avotilaa, muutama huone, omat wc-tilat ja tilava taukotila.
Itämerenkatu 3 on toimisto- ja liiketilakiinteistö, joka on valmistunut vuonna 1998. Kiinteistö sijaitsee hyvien kulkuyhteyksien varrella, lähellä Ruoholahden metroasemaa. Toimitilat ovat suunniteltavissa ja muokattavissa täysin vuokralaisen tarpeiden mukaan. Kiinteistö saneerattiin vuoden 2019 aikana. Kiinteistössä on lounasravintola, kellarissa on kuntosali, pyöräparkki ja suihkutilat.
Kysy lisää numerosta 044 723 4700 tai info@bref.fi. Palvelumme on tilanhakijoille ilmainen.
Tämä toimisto sijaitsee vain 1 minuutin kävelymatkan päässä linja-autoasemalta. Jos haluat saada autosi säihkyvän puhtaaksi, lähin autopesula on vain 9 minuutin matkan päässä. Viereinen ruokakauppa on varsin hyödyllinen etu kotimatkallasi. Lähin kuntosali löytyy 413 m päästä toimistosta. Kuntosali joka sijaitsee vain 7 minuutin päässä toimistosta, on asianmukaisesti varustettu urheilukeskus.
Basic
Kun perustat yrityksen alueelle Helsinki, tulet ymmärtämään mitä yritysystävällinen infrastruktuuri tarkoittaa. Tämän toimiston pinta-ala on 234.0m². Se luokitellaan keskikokoiseksi liiketilaksi tässä kaupungissa. Saat lisätietoja tästä toimistosta joka sijaitsee osoitteessa Itämerenkatu 3, 00180 Helsinki suoraan vuokranantajalta täyttämällä lomakkeen verkkosivuillamme. Täytä lomake saadaksesi lisätietoja toimistosta. Kaikki tarvitsemasi tiedot saat suoraan vuokranantajalta.
713 m päässä sijaitseva järvi kruunaa kaupunginosan ainutlaatuisen imagon. Toria lähellä sijaitseva toimisto on osa kaupungin tärkeintä kaupallista aluetta. Toimisto sijaitsee lähellä puistoa todella rauhallisessa ja inspiroivassa sijainnissa. Toimiston välittömässä läheisyydessä oleva liikenneväylä tuo lisäetuja kaupunkiliikenteeseen. Joki virtaa 204 m etäisyydellä rakennuksesta, mikä lisää paikkakunnan yleistä vetovoimaa.

Etkö ole vielä löytänyt sopivaa tilaa?
Luo hakuvahti ja saat tietoja uusista vapaista vuokrakohteista.
Näyttää siltä, että suosikit-listasi Kohteeton täynnä. Poista vanhoja kohteita lisätäksesi uusia.
Näyttää siltä, että suosikit-listasi Kohteeton täynnä. Poista vanhoja kohteita lisätäksesi uusia.
Näyttää siltä, että suosikit-listasi Kohteeton täynnä. Poista vanhoja kohteita lisätäksesi uusia.
Näyttää siltä, että suosikit-listasi Kohteeton täynnä. Poista vanhoja kohteita lisätäksesi uusia.
Näyttää siltä, että suosikit-listasi Kohteeton täynnä. Poista vanhoja kohteita lisätäksesi uusia.
Näyttää siltä, että suosikit-listasi Kohteeton täynnä. Poista vanhoja kohteita lisätäksesi uusia.
Näyttää siltä, että suosikit-listasi Kohteeton täynnä. Poista vanhoja kohteita lisätäksesi uusia.
Näyttää siltä, että suosikit-listasi Kohteeton täynnä. Poista vanhoja kohteita lisätäksesi uusia.
Näyttää siltä, että suosikit-listasi Kohteeton täynnä. Poista vanhoja kohteita lisätäksesi uusia.
Näyttää siltä, että suosikit-listasi Kohteeton täynnä. Poista vanhoja kohteita lisätäksesi uusia.
Näyttää siltä, että suosikit-listasi Kohteeton täynnä. Poista vanhoja kohteita lisätäksesi uusia.