




Haapaniemenkatu 7-9, Helsinki
Edullista toimistotilaa Helsingin Merihaassa.
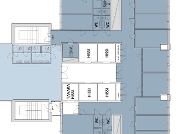
Tämä toimistotila on kooltaan 1203m2, ja se kattaa kiinteistön 2. kerroksen. Toimisto on huoneellinen, ja siihen kuuluvat omat wc- ja keittiötilat. Kerros on mahdollista jakaa kolmelle käyttäjälle, 185m2, 562m2 ja 456m2 kokoisiin osiin. Toimisto on peruskuntoinen, ja se on mahdollista pintaremontoida uudelle vuokralaiselle. Kuvat ovat havainnekuvia jo remontoiduista tiloista.
Haapaniemenkatu 7-9 eli Meritorni sijaitsee hyvien kulkuyhteyksien päässä, lähellä Hakaniemen toria. Kiinteistön lähettyvillä on lounasravintola, päivittäistavarakauppa ja apteekki. Keskustan palvelut lyhyen matkan päässä. Kiinteistössä on runsaasti pysäköintitilaa.
Kysy lisää numerosta 044 723 4700 tai info@bref.fi. Palvelumme on tilanhakijoille ilmainen.
Etkö ole vielä löytänyt sopivaa tilaa?
Luo hakuvahti ja saat tietoja uusista vapaista vuokrakohteista.
Näyttää siltä, että suosikit-listasi Kohteeton täynnä. Poista vanhoja kohteita lisätäksesi uusia.
Näyttää siltä, että suosikit-listasi Kohteeton täynnä. Poista vanhoja kohteita lisätäksesi uusia.
Näyttää siltä, että suosikit-listasi Kohteeton täynnä. Poista vanhoja kohteita lisätäksesi uusia.
Näyttää siltä, että suosikit-listasi Kohteeton täynnä. Poista vanhoja kohteita lisätäksesi uusia.
Näyttää siltä, että suosikit-listasi Kohteeton täynnä. Poista vanhoja kohteita lisätäksesi uusia.
Näyttää siltä, että suosikit-listasi Kohteeton täynnä. Poista vanhoja kohteita lisätäksesi uusia.
Näyttää siltä, että suosikit-listasi Kohteeton täynnä. Poista vanhoja kohteita lisätäksesi uusia.
Näyttää siltä, että suosikit-listasi Kohteeton täynnä. Poista vanhoja kohteita lisätäksesi uusia.