




Atomitie 5, Helsinki
Tuotanto-/toimistotilaa Pitäjänmäellä.
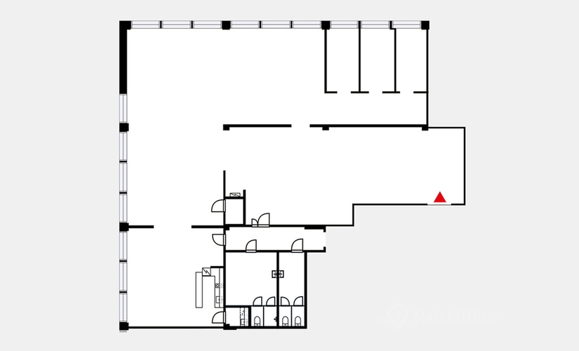
Kyseinen 391m2 tuotantotila sijaitsee kiinteistön 3. kerroksessa. Tilassa on oma keittiö ja wc-tilat. Tilasta on esteetön yhteys tavarahissin kautta kiinteistön pihalle, jossa katettu maantasoinen lastauspaikka. Käytössä myös saksinostin. Tila soveltuu myös toimistokäyttöön. Kuvat ovat yleiskuvia kiinteistön tiloista.
Atomitie 5 on toimisto-/tuotantorakennus, joka sijaitsee Helsingin Pitäjänmäellä. Monipuoliset tilat tarjoavat erinomaisen mahdollisuuden yhdistää kaikki tarvittavat tilatyypit saman katon alle. Kaikkiin tiloihin on esteetön tavara- ja henkilöhissiyhteys. Kiinteistössä on aulapalvelu, lounasravintola ja kokousmaailma.
Kysy lisää numerosta 044 723 4700 tai info@bref.fi. Palvelumme on tilanhakijoille ilmainen.
Basic
Etkö ole vielä löytänyt sopivaa tilaa?
Luo hakuvahti ja saat tietoja uusista vapaista vuokrakohteista.
Näyttää siltä, että suosikit-listasi Kohteeton täynnä. Poista vanhoja kohteita lisätäksesi uusia.
Näyttää siltä, että suosikit-listasi Kohteeton täynnä. Poista vanhoja kohteita lisätäksesi uusia.
Näyttää siltä, että suosikit-listasi Kohteeton täynnä. Poista vanhoja kohteita lisätäksesi uusia.
Näyttää siltä, että suosikit-listasi Kohteeton täynnä. Poista vanhoja kohteita lisätäksesi uusia.
Näyttää siltä, että suosikit-listasi Kohteeton täynnä. Poista vanhoja kohteita lisätäksesi uusia.
Näyttää siltä, että suosikit-listasi Kohteeton täynnä. Poista vanhoja kohteita lisätäksesi uusia.
Näyttää siltä, että suosikit-listasi Kohteeton täynnä. Poista vanhoja kohteita lisätäksesi uusia.
Näyttää siltä, että suosikit-listasi Kohteeton täynnä. Poista vanhoja kohteita lisätäksesi uusia.
Näyttää siltä, että suosikit-listasi Kohteeton täynnä. Poista vanhoja kohteita lisätäksesi uusia.
Näyttää siltä, että suosikit-listasi Kohteeton täynnä. Poista vanhoja kohteita lisätäksesi uusia.
Näyttää siltä, että suosikit-listasi Kohteeton täynnä. Poista vanhoja kohteita lisätäksesi uusia.
Näyttää siltä, että suosikit-listasi Kohteeton täynnä. Poista vanhoja kohteita lisätäksesi uusia.
Näyttää siltä, että suosikit-listasi Kohteeton täynnä. Poista vanhoja kohteita lisätäksesi uusia.
Näyttää siltä, että suosikit-listasi Kohteeton täynnä. Poista vanhoja kohteita lisätäksesi uusia.
Näyttää siltä, että suosikit-listasi Kohteeton täynnä. Poista vanhoja kohteita lisätäksesi uusia.
Näyttää siltä, että suosikit-listasi Kohteeton täynnä. Poista vanhoja kohteita lisätäksesi uusia.
Näyttää siltä, että suosikit-listasi Kohteeton täynnä. Poista vanhoja kohteita lisätäksesi uusia.
Näyttää siltä, että suosikit-listasi Kohteeton täynnä. Poista vanhoja kohteita lisätäksesi uusia.
Näyttää siltä, että suosikit-listasi Kohteeton täynnä. Poista vanhoja kohteita lisätäksesi uusia.
Näyttää siltä, että suosikit-listasi Kohteeton täynnä. Poista vanhoja kohteita lisätäksesi uusia.
Näyttää siltä, että suosikit-listasi Kohteeton täynnä. Poista vanhoja kohteita lisätäksesi uusia.